NEST
Nutrition. Education. Sensory. Tasting.
Client: UPS
Location: 8524 Green Street, Chicago IL
Concept: Sowing Seed
Devastatingly, the global epidemic of food insecurity impacts the lives of families for generations. Unable to end the inequity, families are left feeling isolated, uneducated and defeated. Focused on creating actionable change, the NEST will provide families with resources focused on Nutrition, Education, Sensory Development, and Tasting Experiences , defining the space as NEST.
Concept Statement: Sowing Seed
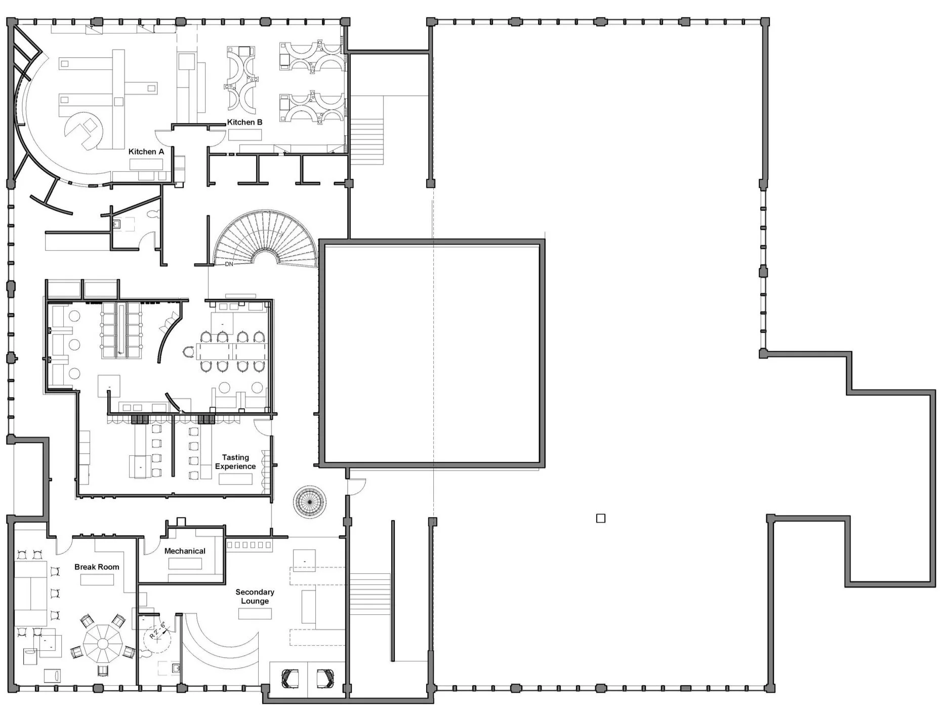
First Floor- Floor Plan
7,000 SF
First Floor Axon
First Floor Sketch Ideation
Concept Application
Concept Application
Second Floor- Floor Plan
7,000 SF
Second Floor Axon
Kolbs Learning Theory
Child Education Room
Beginning with education, children engage in a playful and interactive environment. Custom interactive food boxes allow children to familiarize themselves with uncommon fruits and vegetables such as jicama, radishes, and pomegranates.
Floor Plan Focus Area
Harvest Garden & Market
Harvest Garden & Market Axon
As a dual-functioned space, the Harvest Garden and Market allows families to shop for fresh produce while interacting with growing crops. The custom gardens allow users to fully understand the process of how food is grown, produced, and then distributed onto the shelves.
Custom Garden Axon
Private Library
Food and nutrition education is not easily digestible for parents, especially when entertaining families. This private library offers an intimate space for both parent and child to absorb knowledge which then can be implemented into daily life.
Floor Plan Focus Area
Custom Library Seating
Vegetable Tasting Room
For children to solidify their nutritional preferences, NEST offers a sensory tasting experience. Each room provides a sample of one ingredient based on a seasonal menu for users to consume.
Custom Seating Millwork Axon
Floor Plan Focus Area
Final Tasting Room
After tasting all the ingredients, users join together in the Final Tasting Room to enjoy a dish crafted from the previous nutritional components.
Floor Plan Focus Area
Teaching Kitchen
Parent and child engagement is vital in creating sustainable change when teaching families to cook together. The design of the custom kitchen counter allows for parents and children to engage in cooking practices.
Floor Plan Focus Area
Custom Kitchen Counter Workspace
Final Board
